Le bon plan commenté
abonnés
Par Propos recueillis par Virginie Jourdan
Publié le 14 novembre 2024
Pas de maison écologique sans bon plan. Si confort et performance énergétique comptent, l’agencement de l’habitat doit aussi être pensé et pesé. Suite à notre appel lancé dans le n°134, nous avons reçu 15 plans de projets. Nous en avons soumis trois à l’œil expert de deux professionnelles : deux maisons neuves biosourcées et la rénovation d’un pavillon.
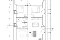
Plan 1
Le plan de Sandrine et Pierre-Yves (22)
• 120 m2 en autoconstruction
• Leur objectif : « De la paille porteuse, un bardage bois ou enduit terre, 120 m2 au sol »
Soizic Guennoc : "Les murs sont en paille et sont épais et la maison, de plain-pied. Le chantier est accessible à de l’autoconstruction."
Agencement « La répartition entre un salon un peu retiré et le coin repas et la cuisine qui sont plutôt centraux du point de vue de la circulation est assez idéal. En revanche, il n’y a pas de coin « entrée » identifié. On arrive directement dans le salon ou dans la pièce de vie et il n’y a pas de sas pour les chaussures et les manteaux, par exemple. Si l’option est de rentrer dans la maison par le garage, puis le long couloir étroit, c’est possible. Mais cela leur convient-il alors vraiment d’avoir positionné les deux chambres sur ce passage avant d’arriver dans la pièce de vie ? La question se pose s’il y a des habitudes de sieste, par exemple.
Pour les toilettes et la salle de bains, le regroupement fonctionne [en termes de réseaux et circulation, ndlr]. Les cercles de 1,50 m de diamètre en pointillé sur le plan indiquent qu’ils ont réfléchi à l’accessibilité avec la giration d’un fauteuil roulant. Mais, dans ce cas, il faut que le couloir mesure 1,20 m de large et non 90 cm pour que le fauteuil puisse faire une giration et rentrer dans la chambre. Il faudra aussi, pour les mêmes raisons, favoriser les portes coulissantes.
De même, la porte des toilettes, dans la mise en œuvre PMR*, donne directement sur le coin cuisine. Ce n’est pas agréable pour tout le monde. Allonger la cloison actuelle qui borde le frigo jusqu’à la pointe de la porte des toilettes est une solution. »
Conception « Le garage et le coin cellier sont inclus dans le volume de la structure en paille porteuse. Il y a changement impératif à faire en termes thermiques. Ici, le mur entre les chambres et le garage qui ne sera pas chauffé n’est pas isolé. Le garage pourrait plutôt être dans une structure plus légère, avec une ossature bois et un simple bardage, donc moins coûteuse. En revanche, le mur entre la chambre et ce garage serait en paille porteuse. Cette solution est moins consommatrice de ressources et résoudra le problème de pont thermique. S’il y a la volonté de transformer ensuite une partie de l’espace du garage en habitation, il faudra là aussi penser à bien isoler le mur des chambres. »
Le débord de toit « Il semble lourd esthétiquement, mais aussi structurellement. Car ce grand débord de toit va demander beaucoup de bois, de transport et de temps de mise en œuvre. Il est possible de couvrir le volume habité par un toit unique sans débord, car les fenêtres est et ouest ne sont pas très grandes, et de mettre une pergola pour couvrir ainsi la terrasse qui serait au sud. »
Cloé Simon : "120 m2 pour deux [sans projet d’augmentation du nombre d’habitants, ndlr], c’est optimisable si on veut pousser l’économie de matières et de consommations d'énergie. Un plan à 90 m2 fonctionnerait aussi très bien. 120 m2 fonctionnent davantage pour au moins quatre personnes en maison individuelle."
Le plain-pied « La maison de plain-pied a ses avantages, dont l’accessibilité pour toutes les personnes ayant des difficultés de déambulation. Architecturalement, c’est aussi très intéressant, car on peut traiter une belle horizontalité et avoir des façades composées avec une belle esthétique. On peut enfin créer des apports lumineux zénithaux dans n’importe quelle pièce. A contrario, le plain-pied génère plus de couloir pour répartir les pièces, donc plus de surface « moins utile », plus de dalle en sol, plus de fondations, plus de toiture. Plus d’emprise au sol. La compacité est moindre. »
Orientation « Pour être optimale, l’orientation de l’angle extérieur du séjour de ce plan doit être sud-ouest. Ainsi, la lumière du matin arrive dans la cuisine et le séjour (+ une chambre). La lumière de la journée arrive dans la cuisine, le séjour et le salon (et les autres pièces de manière indirecte). La lumière du soir parvient dans le séjour, salon et salle de bains (+ chambre orientée ouest). »
Chauffage « Dans un climat maritime tempéré tel que celui des Côtes-d’Armor, au vu de la surface assez réduite, je mettrais un poêle à bois avec masse au centre de la maison. Ou bien, si la performance thermique est atteinte par l’enveloppe, un appoint de chauffage type plancher chauffant dans une chape ou des bouches chauffantes [via une résistance, ndlr] sur une VMC double flux. Cela dépendra évidemment de la performance, de la composition de la dalle, du type de VMC, de la présence ou non de panneaux photovoltaïques pour la production d’électrons et thermiques pour l’eau chaude sanitaire ... »
Ventilation « La VMC double flux est idéale dans un bâtiment avec une enveloppe extérieure thermiquement efficace, car elle rendra le projet encore plus performant. L’air rentrant est déjà réchauffé grâce à l’air sortant, ce qui fait économiser une consommation d’énergie conséquente. Pour être pertinente, elle doit être placée dans un local chauffé, non loin d’un mur extérieur pour que les réseaux soient courts, donc plus performants. »
Agencement « La « non entrée » me saute aux yeux. L’entrée d’un bâtiment n’est pas juste une porte d’accès vers les espaces les plus importants. C’est un cheminement qui nous amène à une découverte. C’est l’arrivée dans un lieu ; elle marque un début et une fin. Elle doit être pensée, identifiée de l’extérieur, lisible, on doit pouvoir l’appréhender de loin sans panneaux signalétiques. Elle doit faire partie de l’architecture et nous attirer pour entrer. Selon la conception, l’entrée peut être volontairement intimiste et confinée pour ensuite – par effet de compression-dilatation – donner à voir subitement de plus grands espaces de vie. Ou, au contraire, elle peut être le belvédère qui donne à voir l’architecture intérieure directement. De plus, elle doit être pratique : judicieusement placée en plan pour distribuer les espaces de vie « publics » et les espaces plus privés. Pour autant, globalement, ce plan est bien dessiné, il n’y a pas trop de circulations et la répartition nuit-jour est claire. Il doit peut-être manquer de rangements. Attention aussi à identifier et placer le cellier/arrière-cuisine ou buanderie. À moins que tout soit dans l’espace du fond ? »
*Personnes à mobilité réduite.
S’abonner pour avoir accès à l’ensemble de nos articles
Abonnement numérique à partir de
48,00 €/an
Déjà abonné ? Se connecter



